Aluguel, Venda R$680.000,00 - Apartamento
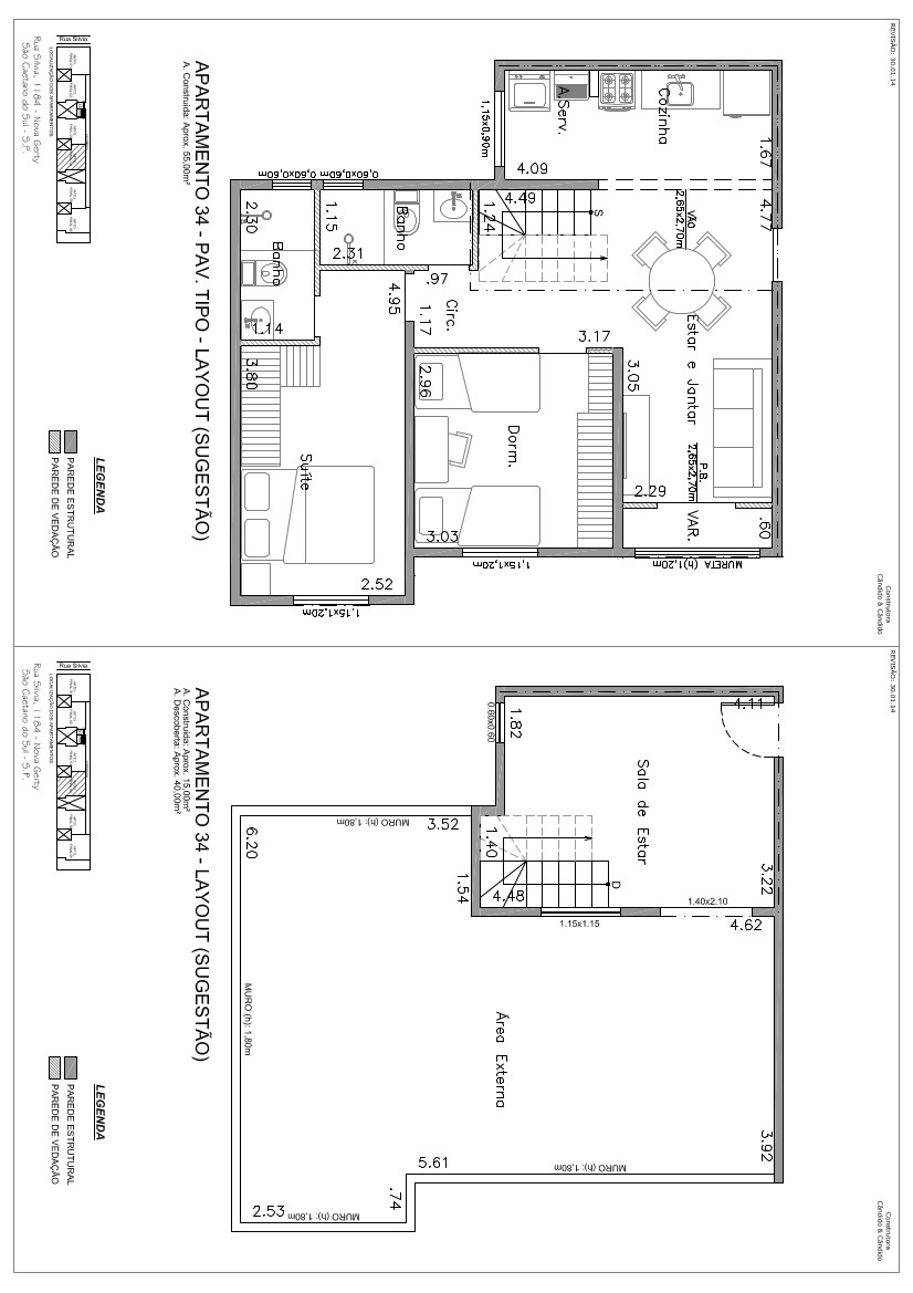
Cobertura Duplex Linda! Super espaçosa, bem arejada e iluminada. Com quintal maravilhoso e uma área que pode ser seu lazer particular.
São 120m² distribuídos em 2 andares. Na parte inferior, 2 dormitórios, sendo 1 suite, sala para 2 ambientes, cozinha, e área de serviço. Na parte superior, um comôdo que pode ser um quarto um hometheater ou uma sala para receber os amigos, um banheiro, uma área de serviço e muito quintal!
O elevador chega até a cobertura, o que evita passagem de convidados pelo apartamento.
detalhes adicionais
- Valor de locação: R$ 3.500,00













